La Fundación Deportiva Municipal y la Federación de Gimnasia de la Comunitat han trabajado de manera conjunta para diseñar el proyecto de la que será la nueva instalación deportiva
Las antiguas Naves Ership, situadas en la calle Juan Verdeguer, continúan avanzando en su proceso para convertirse en un corto plazo de tiempo en un nuevo centro deportivo para la ciudad. Después de que la concejalía de Deportes del Ayuntamiento de València anunciara la licitación del proyecto de rehabilitación y conversión de este espacio, los técnicos de la Fundación Deportiva Municipal han estado trabajando en las últimas semanas con la Federación de Gimnasia de la Comunitat Valenciana para colaborar en el diseño de la instalación y convertirla en una referencia de este deporte femenino a nivel nacional.
El concejal de Deportes del Ayuntamiento de València, Javier Mateo, ha señalado que “se trata de una gran noticia para la ciudad y su deporte que este espacio, que se encontraba en desuso, se recupere para el deporte del barrio y de València a través de la gimnasia, en este caso femenina. Se trata de un proyecto ambicioso que pretende convertir a este nuevo equipamiento deportivo en una referencia, por supuesto de la ciudad, pero también a nivel nacional. Por eso, desde la Fundación Deportiva Municipal y todo el área de Deportes hemos estado trabajando conjuntamente con la Federación de Gimnasia de la Comunitat Valenciana para que esta nueva instalación deportiva esté diseñada y pensada desde su concepción de la mejor manera posible”.
Dentro del plan de desarrollo de los espacios deportivos de la ciudad de València, y para completar el mapa de instalaciones, uno de los más emblemáticos y reivindicados por las asociaciones vecinales ha sido, precisamente, el de las naves de Juan Verdeguer. Con el objetivo de dotar de mejores infraestructuras deportivas al barrio, el proyecto contempla la rehabilitación de una de las naves y su transformación en un centro de gimnasia deportiva, en este caso femenina.
Ahora mismo, está ya contratada la redacción de proyecto y dirección de ejecución de la obra y la estimación económica inicialmente prevista para la construcción de la obra asciende a 1.900.000 euros, IVA incluido. El plazo de ejecución previsto de las obras es de unos diez meses.
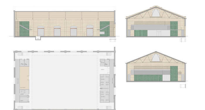
Rehabilitación de un espacio histórico
Con la puesta en marcha de este proyecto, se iniciará el proceso de conversión de las Naves Ership para usos deportivos. En este caso se trata de una nave de 1.294 m2, construidas en 1931 que, actualmente se encuentran en desuso.
Dicha nave, de propiedad municipal, se sitúa en el número 30 de la calle Juan Verdeguer, y cuentan con una fachada principal de ladrillo visto con elementos ornamentales, que conserva la esencia arquitectónica de las antiguas fábricas.
Por ello, con la iniciativa se pretende, por una parte, conservar un edificio histórico y, por otra, atender las necesidades de la ciudadanía y dar lugar a un espacio que complete la infraestructura deportiva del barrio del Grau.













